Sodo namelis Nizza 390 x 300 cm, 28mm.
Pavasario akcija
Nepraleiskite – pavasario akcija visoms prekėms iki 15 %
Sale_coupon_15
2320,00 €
17 Žmonės dabar žiūri šį produktą!
Atsiskaitymo būdai:
Aprašymas
Dėl pristatymo kreiptis telefonu +370 605 35386
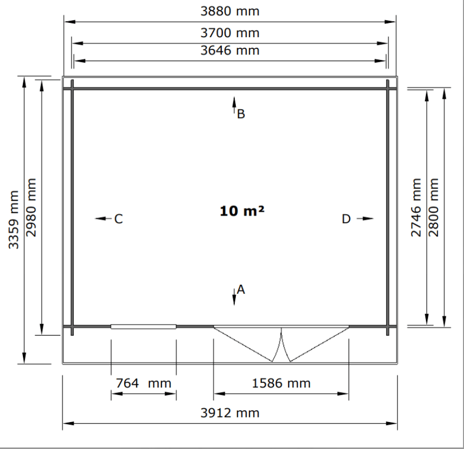
- Išoriniai matmenys: 390 x 300 cm (plotis x gylis)
- Pagrindo matmenys: 370 x 280 cm
- Priekinės sienos aukštis: maždaug 209 cm
- Stogo iškyša: maždaug 20 cm
- Naudingasis plotas: maždaug 10 m²
- Patalpų tūris: maždaug 20 m³
- Sienos storis: 28 mm
- Stogas: OSB plokštės
- Spalva: natūrali
- Pakavimas: 1 pakuotė
- Pakuotės dydis: 400 x 125 x 50 cm
- Svoris apie 500 kg
Į komplektaciją neįeina stogo danga, grindys, medienos dažai ir tvirtinimo elementai (medsraigčiai).
Customer Reviews
Panašūs produktai
„Klijai 88” Universalūs vandeniui atsparus klijai. Tūris 40ml – 100ml
Sandėlyje
1,50 €
Pasirinkti savybes This product has multiple variants. The options may be chosen on the product page






