Sodo sandėliukas Paris 250 x 220 cm
Produkto kodas: 42711223
Pavasario akcija
Nepraleiskite – pavasario akcija visoms prekėms iki 15 %
Sale_coupon_15
839,00 €
20 Žmonės dabar žiūri šį produktą!
Atsiskaitymo būdai:
Aprašymas
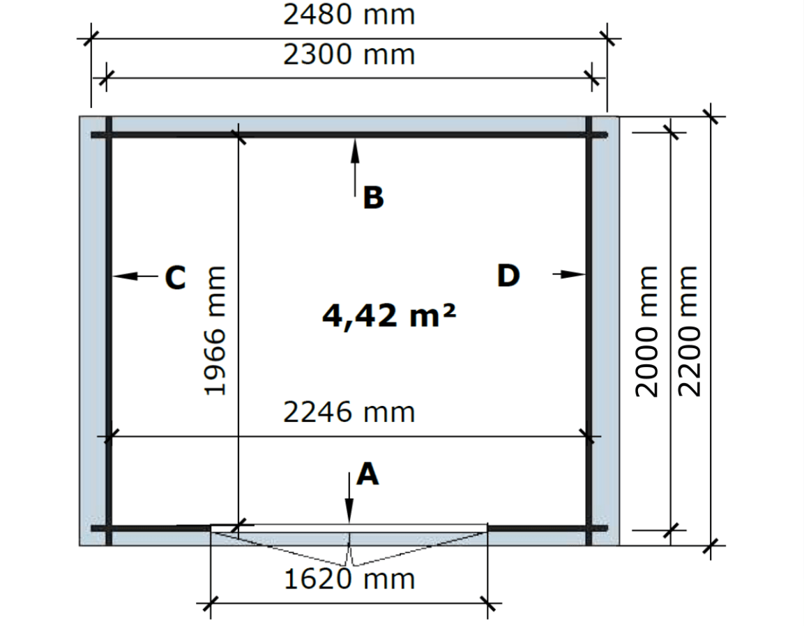
Medinis sandėliukas Paris 250 x 220 cm, 28 mm.
· Išoriniai matmenys: 250 x 220 cm (plotis x gylis)
· Pagrindo matmenys: 230 x 200 cm
· Sienos aukštis priekyje: 208,5 cm
· Sienos aukštis gale: 193 cm
· Naudingasis plotas: 4,42 m²
· Stogas: OSB plokštės
· Sienos storis: 28 mm
· Spalva: natūrali
Į komplektaciją neįeina stogo danga, grindys, medienos dažai ir tvirtinimo elementai (medsraigčiai).
Customer Reviews
Panašūs produktai
„Klijai 88” Universalūs vandeniui atsparus klijai. Tūris 40ml – 100ml
Sandėlyje
1,50 €
Pasirinkti savybes This product has multiple variants. The options may be chosen on the product page







