Sodo sandėliukas Turin 250 x 250 cm, 28 mm, impregnuotas
Pavasario akcija
Nepraleiskite – pavasario akcija visoms prekėms iki 15 %
Sale_coupon_15
3120,00 €
13 Žmonės dabar žiūri šį produktą!
Atsiskaitymo būdai:
Aprašymas
Dėl pristatymo kreiptis telefonu +370 605 35386
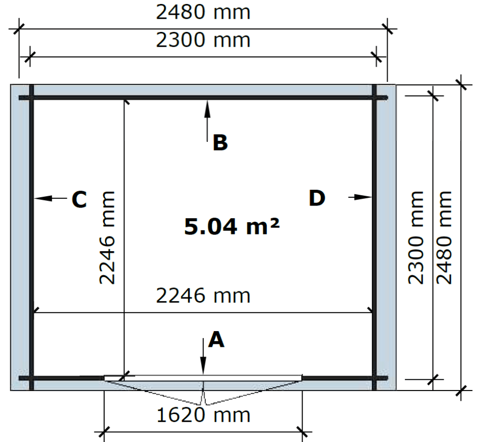
- Išoriniai matmenys: 250 x 250 cm (plotis x gylis)
- Pagrindo matmenys: 230 x 230 cm
- Šoninės sienelės aukštis: apie 200 cm
- Visas aukštis: apie 210 cm
- Naudingasis plotas: 5,04 m²
- Sienos storis: 28 mm
- Stogas: OSB plokštės
- Spalva: IMPREGNUOTAS
- Pakavimas: 1 pakuotė
- Pakuotės dydis: 275 x 125 x 40 cm
- Svoris apie 375 kg
Į komplektaciją neįeina stogo danga, grindys, medienos dažai ir tvirtinimo elementai (medsraigčiai).
Customer Reviews
Panašūs produktai
„Klijai 88” Universalūs vandeniui atsparus klijai. Tūris 40ml – 100ml
Sandėlyje
1,50 €
Pasirinkti savybes This product has multiple variants. The options may be chosen on the product page










