Sodo namelis Florenz 380 x 320 cm, 44mm.
Pavasario akcija
Nepraleiskite – pavasario akcija visoms prekėms iki 15 %
Sale_coupon_15
3420,00 €
11 Žmonės dabar žiūri šį produktą!
Atsiskaitymo būdai:
Aprašymas
Dėl pristatymo kreiptis telefonu +370 605 35386
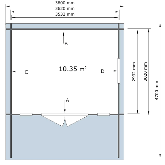
- Išoriniai matmenys: 380 x 320 cm (plotis x gylis)
- Pagrindo matmenys: 350 x 290 cm
- Stogo iškyša: maždaug 150 cm
- Šoninės sienelės aukštis: apie 200 cm
- Visas aukštis: apie 262 cm
- Naudingasis plotas: 10,35 m²
- Patalpų tūris: maždaug 38,72 m³
- Sienos storis: 44 mm
- Grindys: OSB plokštės
- Galima statyti veidrodiniu principu
- Spalva: natūrali
- Pakavimas: 1 pakuotė
- Pakuotės dydis: 470 x 125 x 70 cm
- Svoris apie 1050 kg
Į komplektaciją neįeina stogo danga, medienos dažai ir tvirtinimo elementai (medsraigčiai).
Customer Reviews
Panašūs produktai
„Klijai 88” Universalūs vandeniui atsparus klijai. Tūris 40ml – 100ml
Sandėlyje
1,50 €
Pasirinkti savybes This product has multiple variants. The options may be chosen on the product page







