Sodo namelis Bornholm 450 x 300 cm, 35mm.

Produkto kodas: 3C312A45

Pavasario akcija

Nepraleiskite – pavasario akcija visoms prekėms iki 15 %

Sale_coupon_15

2259,00 

13 Žmonės dabar žiūri šį produktą!

Atsiskaitymo būdai:

Aprašymas

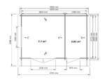
Medinis namelis Bornholm 450 x 300, 35 mm.
·  Išoriniai matmenys: 450 x 300 cm (plotis x gylis)
·  Pagrindo matmenys: 430 x 280 cm
·  Stogo iškyša: 50 cm
·  Šoninės sienos aukštis:200 cm
·  Bendras aukštis: 260 cm
·  Naudingasis plotas: 10,9 m²
·  Sienos storis: 35 mm
·  Stogas: OSB plokštės
· Galima statyti veidrodiniu principu
·  Spalva: natūrali

Į komplektaciją neįeina stogo danga, grindys, medienos dažai ir tvirtinimo elementai (medsraigčiai).

Customer Reviews